Haus (Nr.) 5 -
17 barrierefreie Wohnungen zwischen 70 m² und 167 m²
Haus (Nr.) 5

Zwei Stadthäuser - ein Projekt


Das Bauvorhaben im Kurzprofil
Beim LINDEN FORUM verteilen sich 26 barrierefreie Neubau-Eigentumswohnungen auf zwei individuelle Stadthäuser mit 5, bzw. 6 Etagen und 2 bis 5 Zimmern zwischen 65 m² und 167 m² Größe – überwiegend in Südausrichtung und direkt am nordwestlichen Zugang zum Lindener Markt gelegen. Zwischen den Häusern (Nr.) 5 und (Nr.) 7 befindet sich die Einfahrt zum PKW-Lift in die Tiefgarage mit 17 Pkw- und 38 Fahrradstellplätzen sowie der Zugang zu Haus (Nr.) 5 und den als Garten angelegten Innenhof. Im gemeinsamen Untergeschoss liegen neben den Kellerräumen für jede Wohneinheit gemeinsame Fahrrad-, Kinderwagen- oder Rollatoren-Abstellräume sowie die Schleusen zu den beiden Treppenhäusern mit je einem Personenaufzug bis in die exklusiven Penthouse-Etagen.
Haus 5 - Eckdaten und Verfügbarkeit auf einen Blick
| Whg | Zi. | Größe | Lage | KP | Status |
|---|---|---|---|---|---|
| WE 1 | 2 | 74,70 m² | EG | 493.100 € | frei |
| WE 2 | 2 | 69,73 m² | EG | 460.300 € | frei |
| WE 3 | 2 | 70,38 m² | EG | 478.600 € | frei |
| WE 4 | 2 | 72,68 m² | EG | 494.300 € | frei |
| WE 5 | 3 | 89,11 m² | 1. OG | 597.100 € | frei |
| WE 6 | 2 | 69,89 m² | 1. OG | 468.300 € | frei |
| WE 7 | 5 | 132,55 m² | 1. OG | 908.000 € | frei |
| WE 8 | 3 | 89,14 m² | 2. OG | 601.700 € | frei |
| WE 9 | 2 | 70,21 m² | 2. OG | 474.000 € | frei |
| WE 10 | 4 | 124,05 m² | 2. OG | 849.800 € | frei |
| WE 11 | 3 | 89,15 m² | 3. OG | 606.300 € | frei |
| WE 12 | 2 | 70,23 m² | 3. OG | 477.600 € | frei |
| WE 13 | 3 | 102,85 m² | 3. OG | 709.700 € | frei |
| WE 14 | 3 | 90,56 m² | 4. OG | 615.900 € | frei |
| WE 15 | 2 | 69,78 m² | 4. OG | 474.600 € | frei |
| WE 16 | 2 | 81,59 m² | 4. OG | 563.000 € | reserviert |
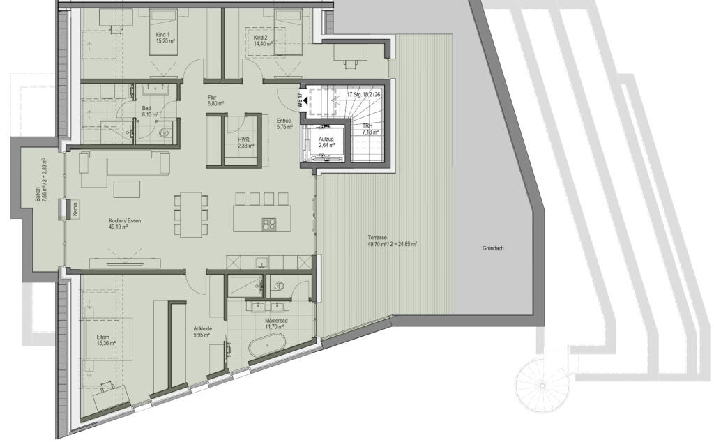
| WE 17 | 4 | 167,09 m² | Penthouse | 1.169.700 € | frei |
Optional kann ein Tiefgaragen-Stellplatz für 40.000 € inkl. MwSt. erworben werden.
Die Kaufpreise verstehen sich exklusive Maklercourtage.
Für den Käufer fällt eine Courtage in Höhe von 3,57 % inkl. MwSt. auf den notariell beurkundeten Kaufpreis an.
6 Geschossgrundrisse und deren Wohneinheiten
Zu den einzelnen Wohnungsgrundrissen gelangen Sie zuerst mit Klicken auf einen der Geschossgrundrisse und anschließend eines der farbigen Info-Felder:
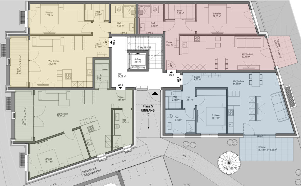
Erdgeschoss | Haus 5

Zu den vergrößerten Wohnungs-Einzelgrundrissen sowie deren detaillierter Beschreibung gelangen Sie durch das Klicken auf eines der farbigen Info-Felder:
Haus 5 WE 1
Lage:
Zimmer:
Wohnfläche:
Preis:
Status:
vorne li.
2
74,7 m²
493.100 € FREI
Haus 5 WE 2
Lage:
Zimmer:
Wohnfläche:
Preis:
Status:
hinten li.
2
69,73 m²
460.300 €
🟢 FREI
Haus 5 WE 3
Lage:
Zimmer:
Wohnfläche:
Preis:
Status:
hinten re.
2
70,38 m²
478.600 € FREI
Haus 5 WE 4
Lage:
Zimmer:
Wohnfläche:
Preis:
Status:
vorne re.
2
72,68 m²
494.300 € FREI
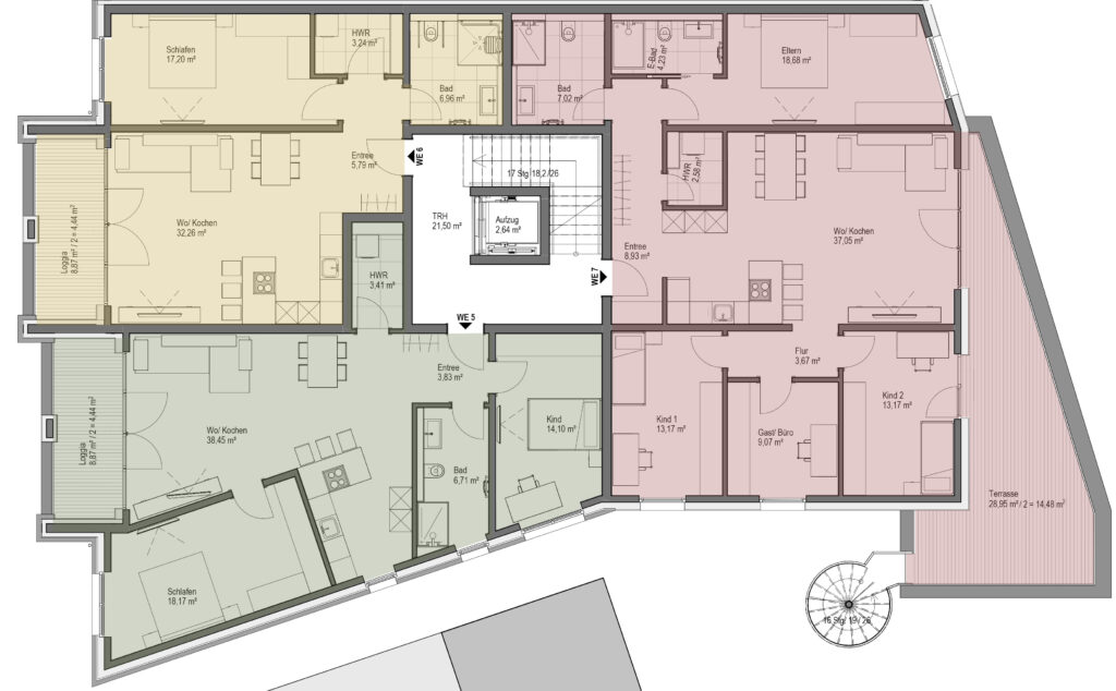
1. Obergeschoss | Haus 5

Zu den vergrößerten Wohnungs-Einzelgrundrissen sowie deren detaillierter Beschreibung gelangen Sie durch das Klicken auf eines der farbigen Info-Felder:
Haus 5 WE 5
Lage:
Zimmer:
Wohnfläche:
Preis:
Status:
vorne li.
2
89,11 m²
597.100 € FREI
Haus 5 WE 6
Lage:
Zimmer:
Wohnfläche:
Preis:
Status:
hinten li.
2
69,89 m²
468.300 € FREI
Haus 5 WE 7
Lage:
Zimmer:
Wohnfläche:
Preis:
Status:
rechts
5
132,55 m²
908.000 € FREI
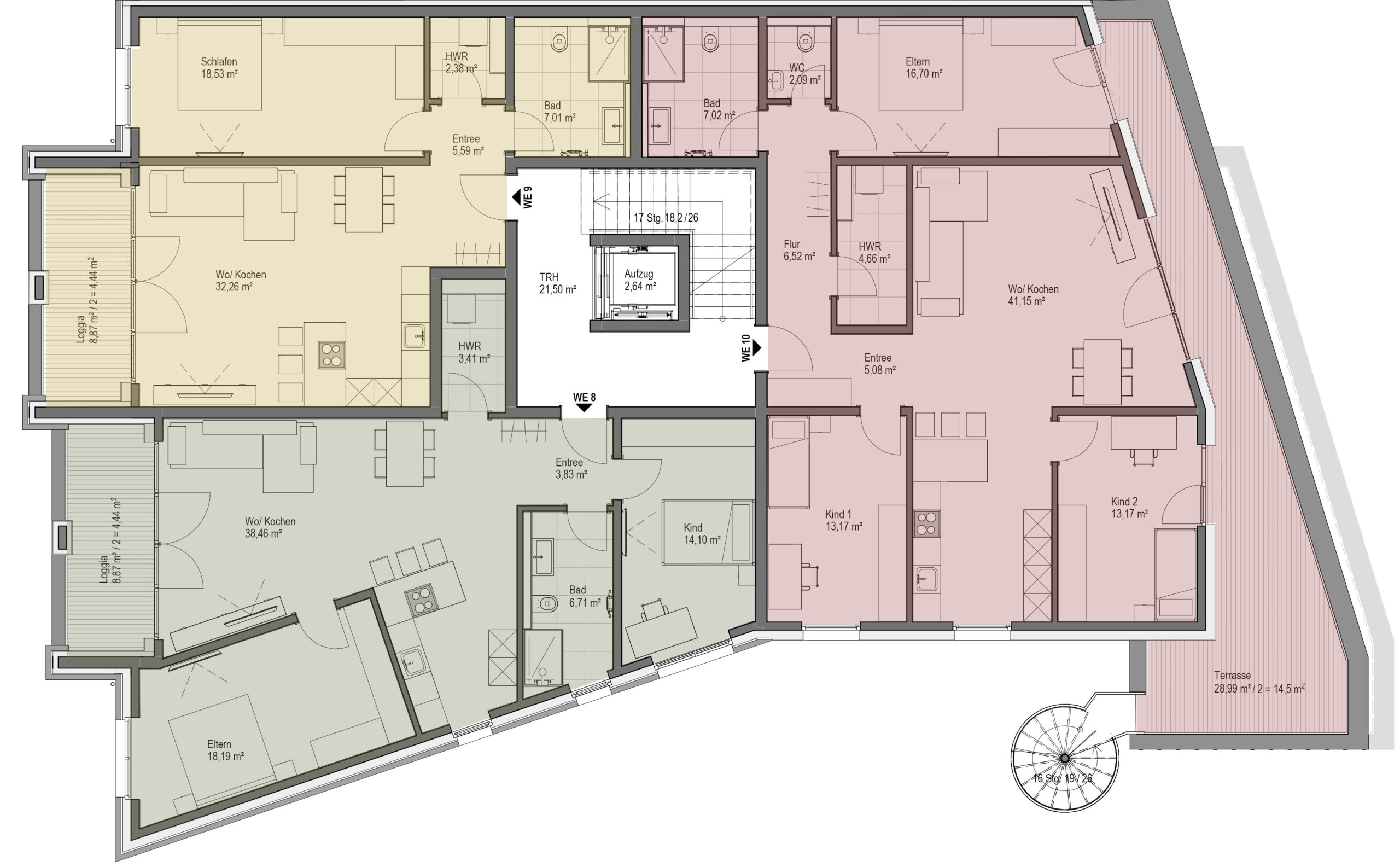
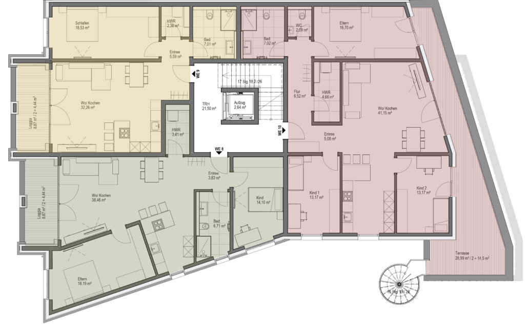
2. Obergeschoss | Haus 5

Zu den vergrößerten Wohnungs-Einzelgrundrissen sowie deren detaillierter Beschreibung gelangen Sie durch das Klicken auf eines der farbigen Info-Felder:
Haus 5 WE 8
Lage:
Zimmer:
Wohnfläche:
Preis:
Status:
vorne li.
3
89,14 m²
601.700 € FREI
Haus 5 WE 9
Lage:
Zimmer:
Wohnfläche:
Preis:
Status:
hinten li.
2
70,21 m²
474.000 € FREI
Haus 5 WE 10
Lage:
Zimmer:
Wohnfläche:
Preis:
Status:
rechts
4
124,05 m²
849.800 € FREI
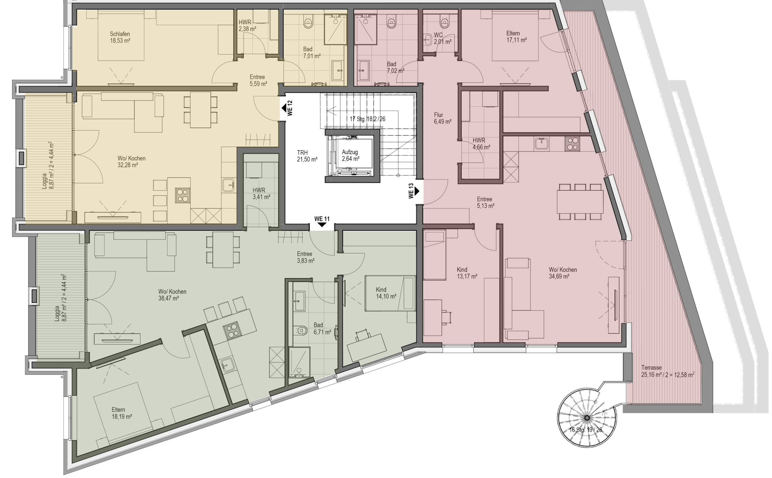
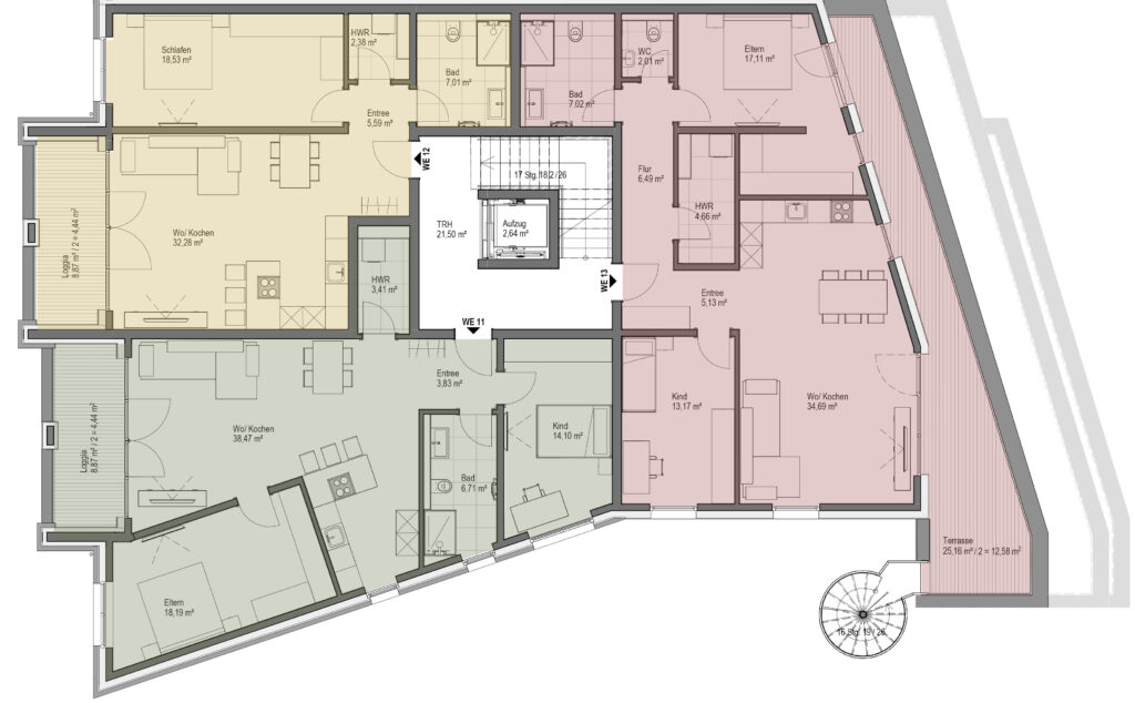
3. Obergeschoss | Haus 5

Zu den vergrößerten Wohnungs-Einzelgrundrissen sowie deren detaillierter Beschreibung gelangen Sie durch das Klicken auf eines der farbigen Info-Felder:
Haus 5 WE 11
Lage:
Zimmer:
Wohnfläche:
Preis:
Status:
vorne li.
3
89,15 m²
606.300 € FREI
Haus 5 WE 12
Lage:
Zimmer:
Wohnfläche:
Preis:
Status:
hinten li.
2
70,23 m²
477.600 € FREI
Haus 5 WE 13
Lage:
Zimmer:
Wohnfläche:
Preis:
Status:
rechts
3
102,85 m²
709.700 € FREI
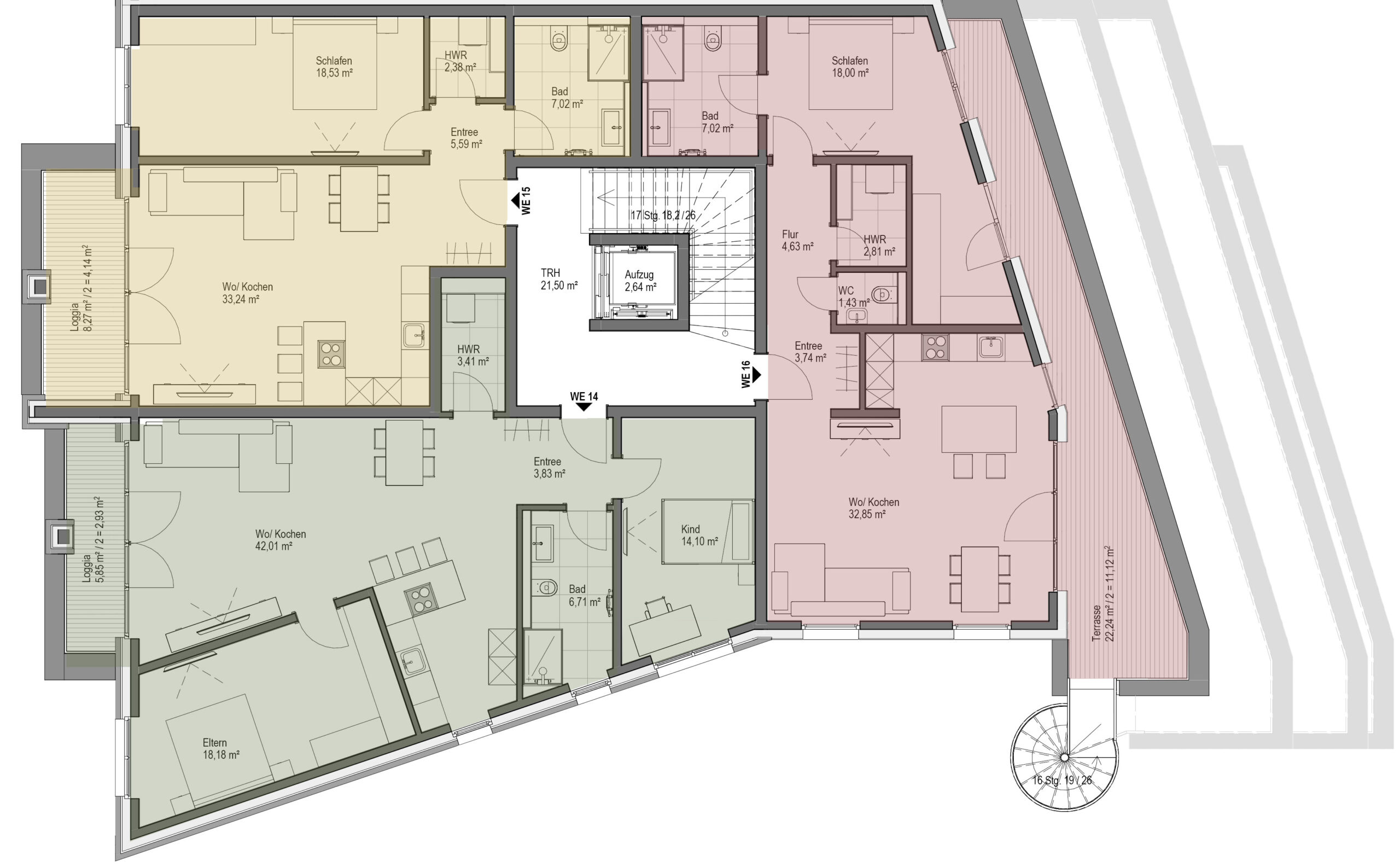
4. Obergeschoss | Haus 5

Zu den vergrößerten Wohnungs-Einzelgrundrissen sowie deren detaillierter Beschreibung gelangen Sie durch das Klicken auf eines der farbigen Info-Felder:
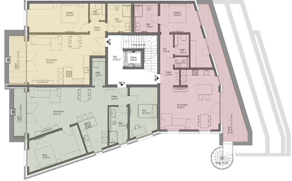
Haus 5 WE 14
Lage:
Zimmer:
Wohnfläche:
Preis:
Status:
vorne li.
3
90,56 m²
615.900 € FREI
Haus 5 WE 15
Lage:
Zimmer:
Wohnfläche:
Preis:
Status:
hinten li.
2
69,78 m²
474.600 € FREI
Haus 5 WE 16
Lage:
Zimmer:
Wohnfläche:
Preis:
Status:
rechts
2
81,59 m²
563.000 € Reserviert
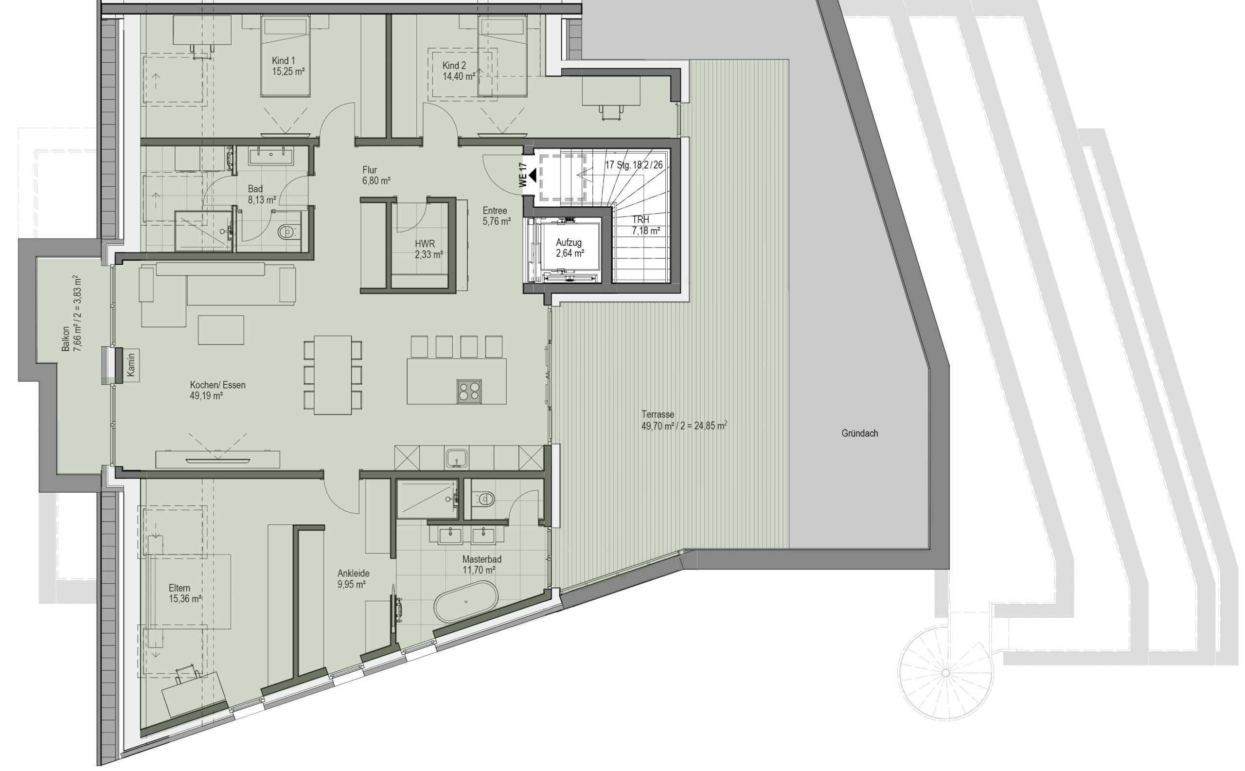
Staffelgeschoss | Haus 5

Ich freue mich auf Ihre Nachricht

Ihr Ansprechpartner
Jannes Lachowicz
Bitte hinterlassen Sie mir kurz Ihre Kontaktdaten – ich übersende Ihnen umgehend das allgemeine Exposé zum LINDEN FORUM.
Nennen Sie mir gerne Ihre Wünsche und Prioritäten zu diesem in seiner Ausprägung einzigartigen Bauvorhaben, damit ich Ihnen passgenaue Informationen zusammenstellen kann – auf Wunsch auch mit einer kurzen Einordnung aus erster Hand.

















